PLAVÁREŇ VALALIKY

status súťaž typ novostavba miesto Valáliky rok 2023 autori ROAR x TVAR vizualizácie TVAR x Final Studio

Plaváreň s metalickou fasádou osadená v krajine.

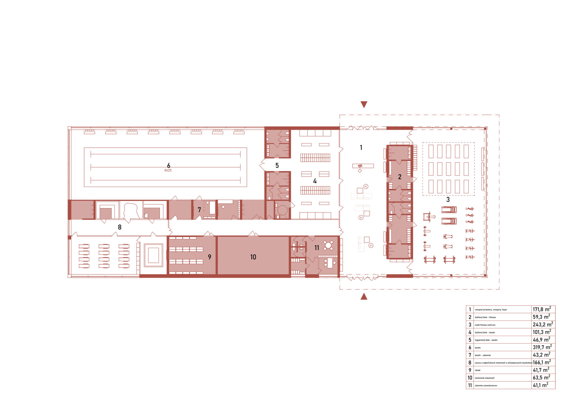
Plaváreň Valaliky je súčasťou komplexného súťažného návrhu Centra verejných služieb Valaliky v Košiciach. Je situovaná v športovo-vzdelávacom klastri, kde na jednej strane uzatvára blok a na druhej sa prirodzene otvára do krajiny. Objekt pracuje s priehľadmi a plynulým prepojením interiéru s exteriérom – vnútorný priestor sa opticky aj funkčne predlžuje smerom do okolitej krajiny.